□大賀郷 甚太
□別荘、民泊向き DIY 屋根張替え、ドア交換、キッチン交換
□駐車スペースあり。
物件写真


























契約条件
価格 380万円
引渡可能時期 相談
建物情報
所在地 東京都八丈島八丈町大賀郷7040番地2
建物構造 木造
階数 平家建
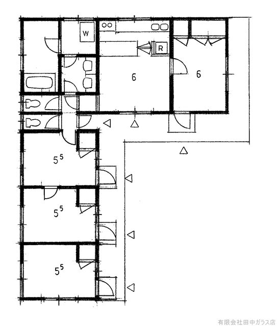
間取り 4DK
建物面積 89.65㎡
建築年月 不明 未登記
土地情報
地目 山林
地勢 傾斜地
土地権利 所有権
都市計画 非線引き区域
用途地域 指定なし
建ぺい率 70%
容積率 200%
土地面積 402㎡
接道 公道4m
その他
仲介手数料 4.4%+2.2万円
取引態様 媒介
備考 境界非明示/建物未登記/契約不適合免責令和6年1月リフォーム(キッチン交換、室内ドア2つ新設、給湯器交換、床天井シロアリ駆除)/令和5年1月リフォーム(ガルバリウムカバー工法屋根張替え、雨樋交換)令和6年1月リフォーム(キッチン交換、室内ドア2つ新設、給湯器交換、床天井シロアリ駆除)/令和5年1月リフォーム(ガルバリウムカバー工法屋根張替え、雨樋交換)
マップ
お問合せフォーム
有限会社田中ガラス店
〒100-1401 東京都八丈島八丈町大賀郷2369番地
TEL: 04996-2-1304
FAX: 04996-2-4413
E-mail:hirokix@bird.ocn.ne.jp
東京都知事(6)第74752号
所属団体名(公社)東京都宅地建物取引業協会

